QUARTIERS-ENTWICKLUNG
M1 PROJEKT
Ist der Traum vom Einfamilienhaus heute nicht mehr zu erfüllen? Ziel dieser Arbeit war es, Häuser zu entwerfen mit einer mindestens vergleichbaren Dichte wie die von üblichen Mehrfamilienhäusern .
Das Plangebiet befindet sich an einer Schnittstelle zwischen der Innenstadt von Aachen und dem peripheren Wohngebiet Haaren, in einem Gewerbegebiet. Dieses gut erschlossene Gebiete in Stadtnähe kann eine wichtige Rolle in der zukünftigen Stadtentwicklung spielen. Aufgrund einer angrenzenden Kiesgrube kommt es jedoch zu erheblichen Lärmbeeinträchtigungen, diese werden durch gezielt platziere Gebäude und den Erhalt von bisherigen Produktionshallen einer Glaserei von den Wohngebäuden auf dem Grundstück und im Umfeld abgehalten. Der städtebauliche Entwurf, welcher in Gruppenarbeit entstand, geht daher neue Wege. Es entstand eine Abfolge von Höfen mit einer Nutzungsmischung aus Gewerbe, Wohnen und kleinen kulturellen Angeboten - ein vollständiges Quartier.
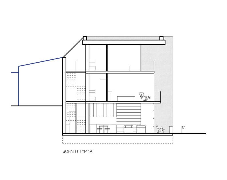
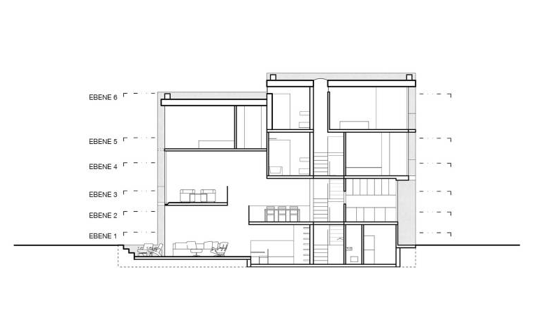
Die Gebäude im Norden wurden von mir ausgearbeitet, mit dem anfangs erwähnten Ziel. Dazu suchte ich mir eine Referenz aus den 1970er Jahren, das Scheibenhaus, welches klassisch in Beton ausgeführt wird und übersetzte dies in einen zukunftsweisenden Holzmassivbau.























