STADTARCHIV STOLBERG
BACHELORARBEIT
Aufgabe der Bachelorarbeit war es, in Einzelarbeit, ein Stadtarchiv für Stolberg zu planen. Die Stadt nutzte die Entwürfe als Ideenwettbewerb für die reale Bauaufgabe.
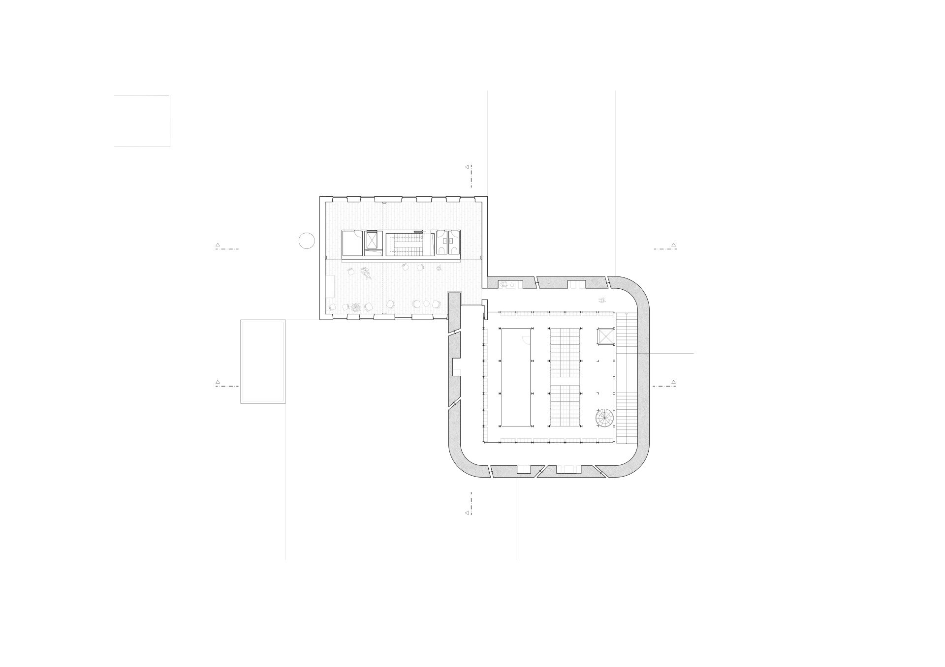
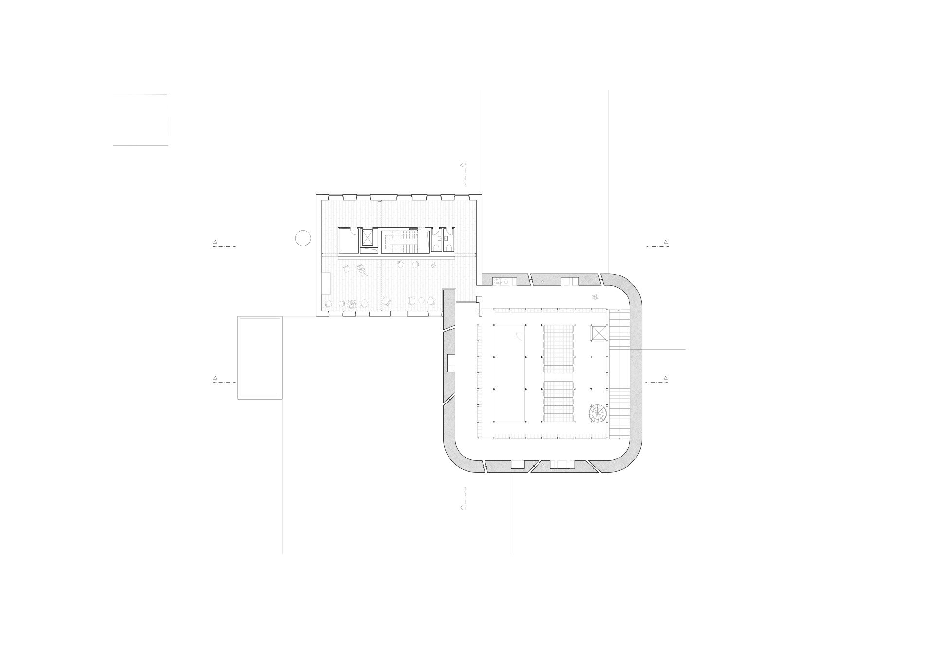
Zentral war der Umgang mit dem Bestandsgebäude , einer Verwaltungsvilla aus der Gründerzeit . Der Ort, eine Zinkfabrik (heute in Teilen Museum), hat eine dunkle Vergangenheit . Zum einen war es ein Ort, an dem in der NS-Zeit ZwangsarbeiterInnen untergebracht wurden, zum anderen waren die Arbeitsbedingung in der Zinkhütte, welche von diesem Gebäude kontrolliert wurden, desaströs. Daher entschied ich mit für eine harte Geste des Entwurfs, welcher die Villa in ihrer Wirkung entmachtet. Das neue Archiv stellt sich vor die Villa, die Symmetrie ist gebrochen.
Ein kleines Denkmal, welches bisher verloren auf dem Gelände stand, erhält eine eigene Architektur, welche die Emotionen der Personen vermittelt, die hier in der Vergangenheit gelitten haben.
Die Themen Identität, Heimatgefühl und kulturelles Erbe mussten in Einklang mit den technischen Anforderungen an ein Archiv gebracht werden.















