NACHNUTZUNG VON WARENHÄUSERN
MASTERARBEIT
Warenhäuser prägen seit Jahrzehnten deutsche Innenstädte. Der größte Betreiber-Konzern von Warenhäusern, die Galeria Karstadt Kaufhof GmbH, beschloss im Juni 2020, dass rund 62 Filialen geschlossen werden, durch die Insolvenz im November 2022 werden weitere folgen. Wie können diese Gebäude in Zukunft genutzt werden? Auf diese Frage will die vorliegende Masterthesis eine Antwort, am Beispiel der Bielefelder Karstadt Filiale, geben.
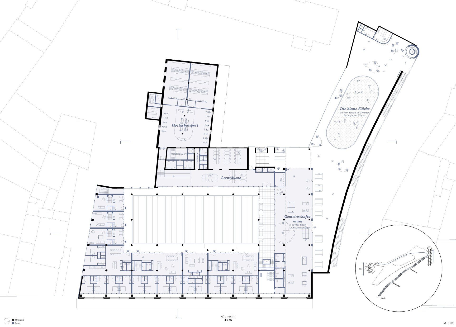
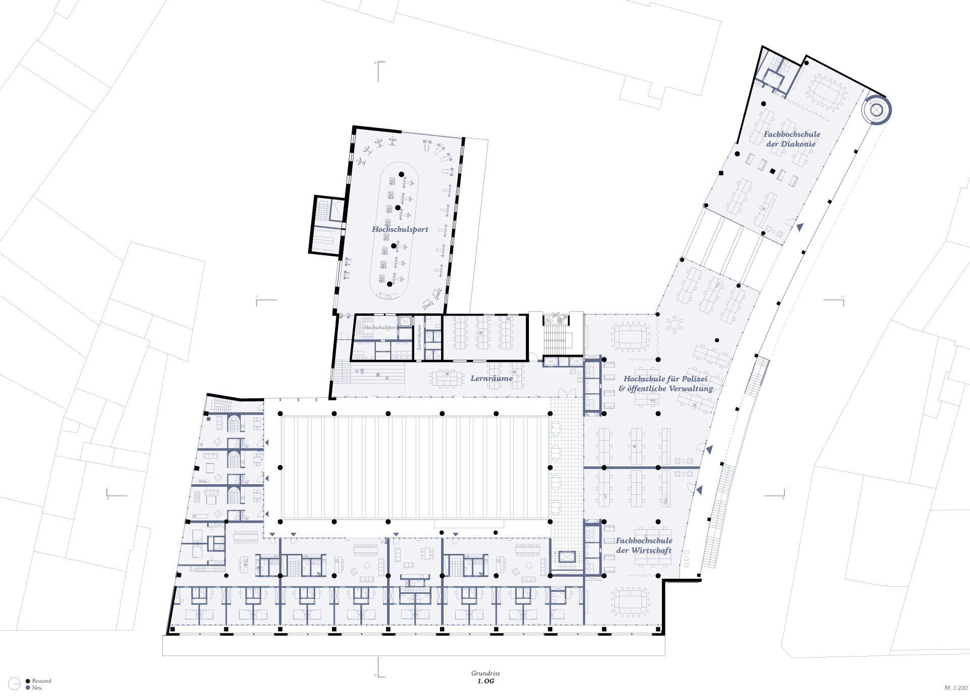
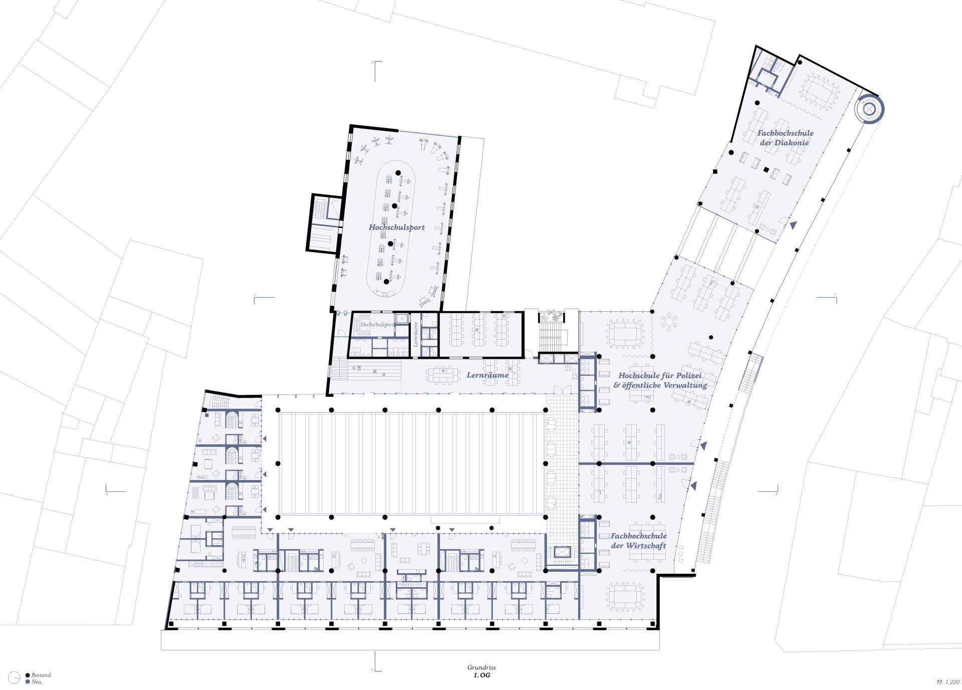
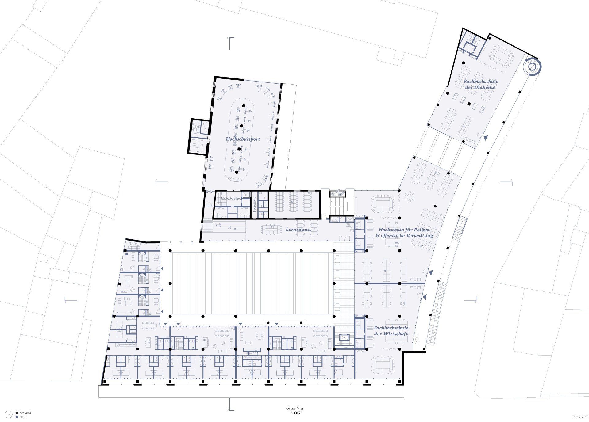
Das Konzept zur Umnutzung des Warenhauses beruht dabei auf der Nutzung als Hochschulhaus. Das Gebäude in Bielefeld besitzt, wie viele andere Warenhäuser, eine große Bedeutung für die Innenstadt: einerseits historisch, worauf die große mediale Aufmerksamkeit hinweist, und andererseits als ein die Innenstadt belebender Ort, auch wenn diese Funktion heute abgeklungen ist. Alleine zu diesem einen Karstadt Gebäude fanden sich im Zuge der Recherche über 135 Zeitungsartikel. Ziel war es daher, wieder ein Haus von Bedeutung und mit einer lebendigen Erdgeschosszone zu gestalten. Es soll ein gemeinsamer, repräsentativer Standort für alle 6 Hochschulen der Stadt entstehen. Die sehr kontextspezifische Neuschöpfung eines Hochschulhauses in Bielefeld beinhaltet Wohnen, je ein Büro für jede Hochschule, Hochschulsport, einen Hörsaal und Ausstellungslokale.

Kontext:
Geplante Filialschließungen Karstadt und Kaufhof:
Eigene Darstellung, Quelle der Informationen:
https://www.faz.net/aktuell/wirtschaft/unternehmen/mit-der-karstadt-und-kaufhof-fusion-
bangen-mitarbeiter-15883087/infografik-einzelhandel-15883127.html
https://www.merkur.de/wirtschaft/karstadt-kaufhof-galeria-filialen-deutschland-schliessung-
krise-muenchen-sporthaus-aus-zr-13804781.html




























